由于對超載超限車輛的嚴格執法,散裝水泥運輸車主為了在限載范圍內盡量多裝,往往單車重復裝卸,大型重載車在出廠磅房狹窄坡道處頻繁倒車帶來了極大的安全風險;同時也造成廠區的二次揚塵污染和開關罐蓋等一系列安全問題。為此,2018年10月份冷水江公司使用了一套河南豐博自動化有限公司“科里奧利秤”,實施水泥散裝計量放灰技術改造。通過近幾個月的運行觀察,計量精度和計量輸送能力都達到了設計目標。
一、實施水泥散裝自動控制改造的原因
近年來,在國家政策和市場雙重推動下,水泥散裝發展迅速,我公司散裝發運量在總銷量中占比超過了50%。但散裝裝車一直以來依靠人工操作,存在裝車數量誤差大、工人勞動強度高、安全事故頻發等諸多問題。這主要是由于散裝裝車與計量環節分離;且計量控制手段落后,導致裝車難以精確定量。

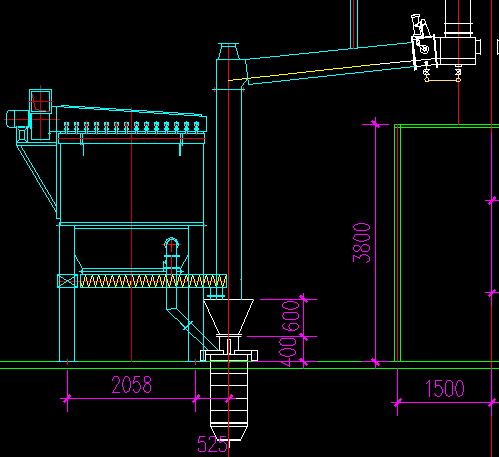
原水泥散裝裝車模式
二、實施水泥散裝自動控制改造的技術方案及費用預算
1、水泥散裝自動控制改造的技術方案
A 在現有的散裝水泥出庫斜槽上增設電動流量調節閥,放灰下料管位置安裝科里奧利粉體秤,安裝高度約0.73m,并接入壓縮空氣管道用于軸承密封。
B 新增設備及原有的氣動開關閥、收塵器、散裝頭升降機構全部并入配套的PLC計量控制系統。現場安裝控制面板,根據車型大小及額定載重量,在觸摸屏上輸入裝車重量,系統自動控制裝車,無需人工干預。
C 散裝水泥定量裝車系統計量輸送能力為: 250m³/h,與原設計能力匹配,可以實時對物料流量進行控制,不受物料及其它因素影響,計量誤差≤±1%。
D 系統兼容性強。后期定量放散設備可同步并入智能物流系統,實現自動裝車。進一步提高裝車效率,降低散裝水泥發運成本。提高企業的管理信息化水平和企業社會形象,并增加企業的經濟效益。

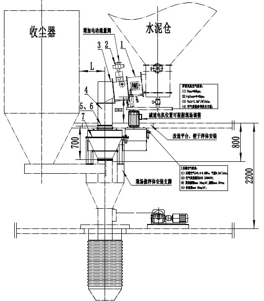
自動化定量裝車模式
2、水泥散裝計量控制核心技術優勢
該散裝計量系統的核心設備是采用了新型科氏力秤。該秤的技術特點是:
A 測量原理先進。
利用“科里奧利”力測量每個瞬時扭矩,從而測出實際瞬時流量;與傳統的測量原理不同,質量流量的直接測量不受任何外力影響,對風壓、風力、磨損、流量的變化等干擾因素不敏感;計量系統運行穩定、可靠。正常工作狀態時,計量精度≤1%。
B 計量穩定性高。
測量不受任何外力影響,軸扭矩反饋控制速度僅為100ms;進料通暢,出料順利,尤其適用大流量粉體物料的計量。
C 系統密封性好。
不需配套收塵設施,環保性能好;而且設備體積小,不需做基礎,土建、安裝費用低,另外,維護量小,維護成本也低。
控制系統設計
該系統采用 PLC控制系統對散裝過程進行全程監控,而且還能與一卡通軟件結合 ,對整個散裝水泥發運過程進行自動化控制,包括讀卡、裝車、計重及結算等系列控制。
散裝車讀卡后,車號、裝載量等數據即輸入系統,操作員只要放好散裝頭后,通過一鍵操作,系統即可自動完成放料、計量、停料的整個裝車過程,并且將車號、設定裝載量、實際裝車量、裝車時間等數據自動保存。
三、使用效果評價
1、水泥定量裝車系統投運后,灌裝 35t水泥只用時6—8min,實現了散裝水泥一次灌裝到位,消除了駕駛員為避免超載罰款重復裝卸的情況,提高了散裝發運效率。基本達到了250m³/h的裝車能力和計量精度≤±1%設計目標。
2、提高了散裝機的使用效率和操作人員的工作效率,實施散裝計量裝車,操作員只需要放好散裝頭,在控制面板輸入裝車量,一鍵啟動,系統即可自動完成放料、計量、停料的整個裝車過程。
3、改善了現場環境。由于計量放灰流量穩定,裝車時現場灰塵少了,同時定量裝車杜絕了因操作不慎料滿溢出的現象。
4、裝車數據及現場安裝圖


現場設備安裝圖
(本文作者:華新水泥有限公司 許高鵬)


